Worrall Road

Residential     Villa
Location       Clifton, Bristol, UK
Our Work     Residential Interior design

Worrall Road

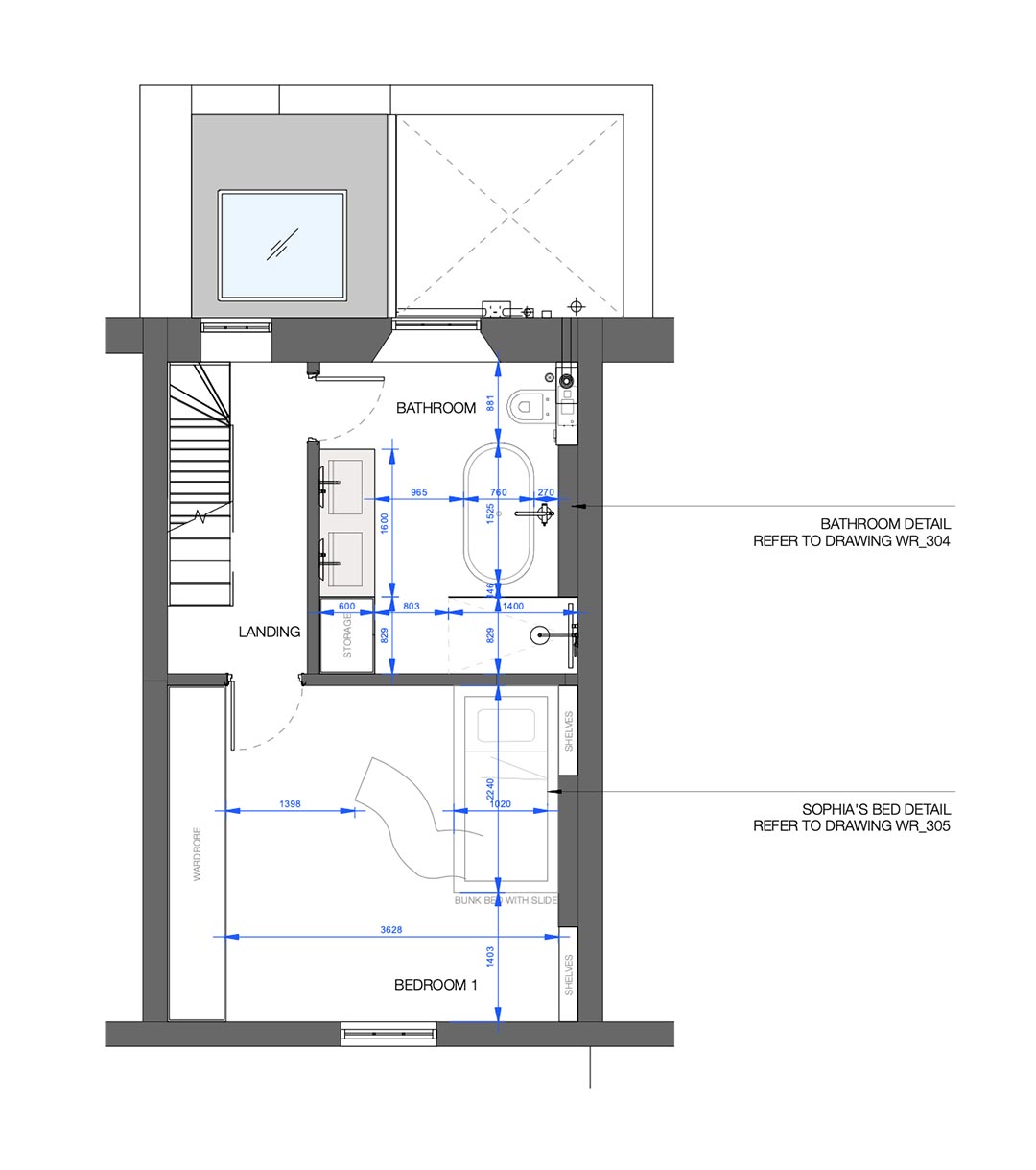
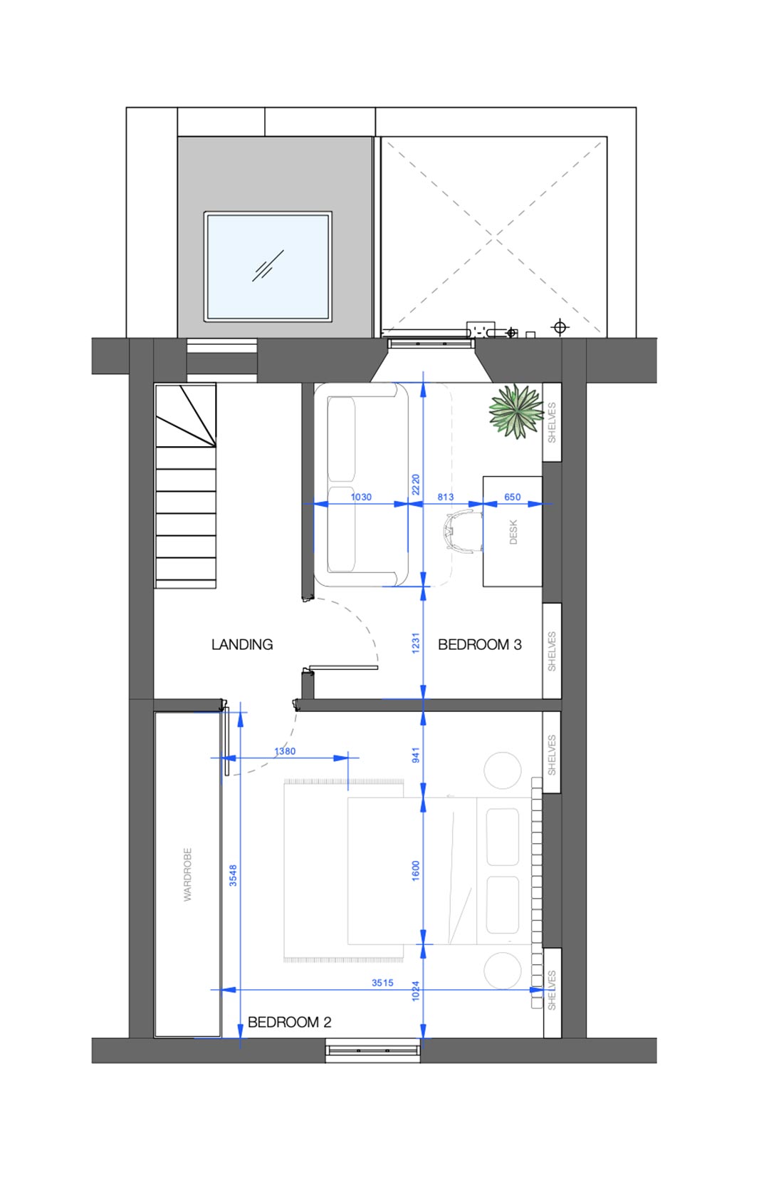
Located in one of Bristol’s most sought-after neighbourhoods, this period house underwent a full residential interior design and home renovation to restore its character and elevate the living experience. We worked closely with the owner to restore the property to its former glory, redesigning the bathrooms, bedrooms, living areas, kitchen and a small patio.

A key focus in the kitchen interior design was strengthening the connection with the outdoor patio. We introduced a larger double-door opening and incorporated mirrors to reflect the surrounding greenery back into the interior, enhancing light and depth. The material palette is luxurious yet understated: Carrara marble and Farrow & Ball’s Studio Green are balanced with oatmeal and soft off-white tones, creating a refined and timeless interior.

Social media & sharing icons powered by UltimatelySocial