WF Flat

Residential     Flat
Location       Santa Ponça, Mallorca, Spain
Our Work     Residential Interior design

WF Flat

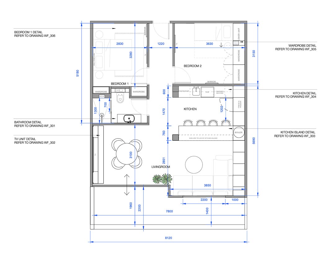
Situated within the marina of Santa Ponça, this flat had a complete refurbishment. We redesigned the existing layout to maximise the living–dining space and fully embrace the views over the marina.

The interior palette is warm, luxurious and distinctly Mediterranean. Soft off-whites, beige and cream tones are paired with walnut wood and striking Calacatta white marble. This marble clads an existing column, which we chose to expose, and reappears throughout the apartment as both backdrop and accent. Neolith Rapolano was introduced for the kitchen and island worktops, adding durability and refinement.

Social media & sharing icons powered by UltimatelySocial