Pisas 3

Residential     4 floors and 6 flats
Location       Granada, Spain
Our Work     Residential Interior design
Archutecture     Rubens Cortes

Pisas 3

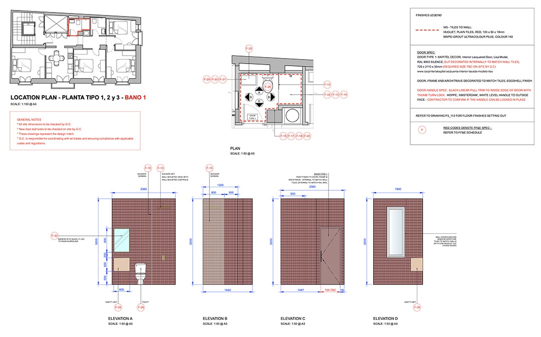
Located in Granada’s historic old town, this beautiful 1920s building is being converted into high-end student apartments. We worked closely, as interior design consultants, with the developer to design all six units, ensuring the project remained respectful of the building’s heritage and original materials.

Existing timber beam ceilings were exposed, Carrara marble floors retained, and original hydraulic tiles carefully restored. Their strong visual presence inspired the interior palette: deep burgundy, dark chocolate and terracotta pink tones, paired with walnut wood and subtle brass accents.

In areas where the original tiles were beyond repair, we specified handcrafted Huguet tiles to preserve the spirit and character of the building.

Full project coming soon.

Social media & sharing icons powered by UltimatelySocial