Manchester Street Food

Location      Manchester, UK
Our Work     Commercial Interior design

Manchester Street Food

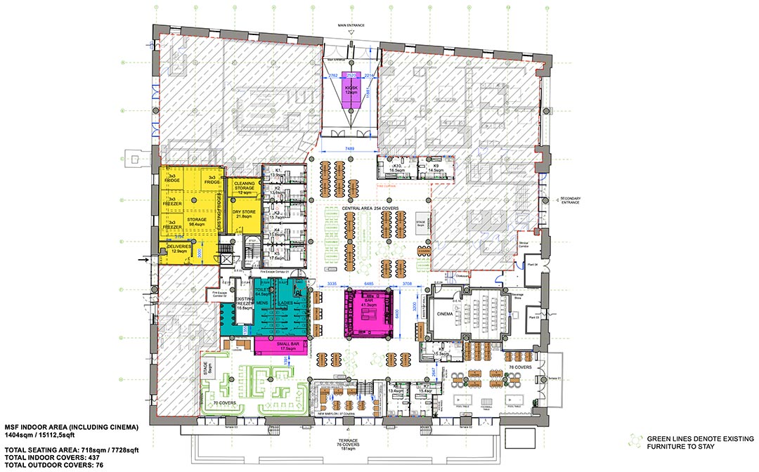
We delivered a vibrant commercial interior design concept for Manchester Street Food, located in the heart of the city, just minutes from Piccadilly Station. The venue occupies a beautiful Grade II listed former cotton warehouse.

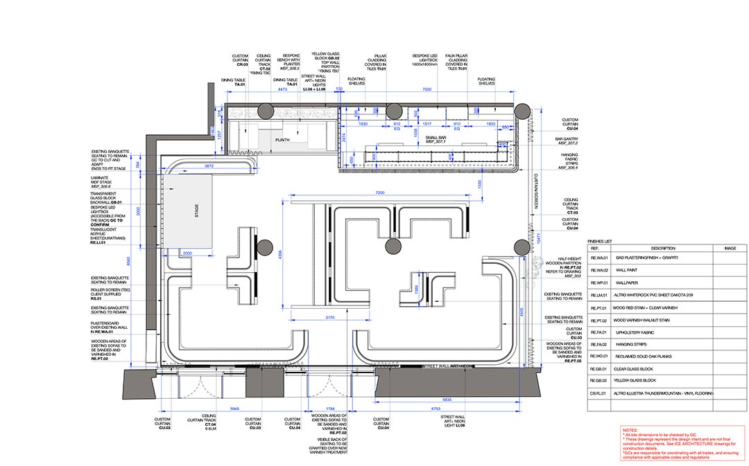
One of the main challenges was introducing the brand’s bold energy, colour and vibrancy while allowing the historic fabric of the building to speak for itself. We stripped back the previous refurbishment to expose original columns, red brick walls and arches. Kitchen kiosks were designed with a deliberately lower height, emphasising their temporary nature within the larger warehouse volume.

The space is organised into several distinct areas, including a games room, indoor garden, lounge bar with a private stage and even a mini cinema. Bold colours, street art, planting and extensive neon lighting define the atmosphere. Every corner has been designed to make an impact, including the toilets, which feature pink mirrors, neon lighting and local artist’s artwork.

This project highlights our expertise in immersive commercial interior design that supports brand identity and customer engagement.

Opening very soon.


More about this project

Secret Manchester, Manchester Evening News, The Manc and Skiddle

Social media & sharing icons powered by UltimatelySocial